Proyek Renovasi pada Masjid Sapta
Deskripsi Proyek
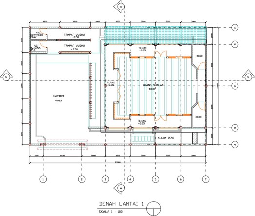
Proyek ini merupakan rancangan renovasi arsitektur Masjid Sapta, dengan pendekatan desain modern yang tetap mempertahankan unsur tradisional sebagai identitas bangunan ibadah. Renovasi dilakukan untuk memperkuat tampilan visual masjid, meningkatkan kenyamanan jamaah, dan memperbaiki sirkulasi ruang serta aksesibilitas.
Fitur Utama Desain
-
-
Atap Joglo Tradisional
Mengusung bentuk atap limasan/joglo yang khas dengan sentuhan kontemporer, desain ini menjaga nilai-nilai arsitektur lokal sembari menyelaraskan dengan struktur masa kini. -
Fasad Minimalis dan Modern
Elemen fasad didominasi oleh kisi-kisi vertikal kayu yang berfungsi sebagai ventilasi alami sekaligus elemen estetis, memberikan kesan modern namun tetap hangat dan religius. -
Material dan Warna yang Kontras namun Harmonis
Perpaduan antara dinding putih, aksen biru garis tegas, dan elemen kayu memberikan kesan bersih, tegas, dan elegan. -
Pencahayaan dan Sirkulasi Udara Optimal
Rangkaian jendela berukuran besar dan ventilasi horizontal di sekeliling bangunan memastikan ruangan mendapatkan pencahayaan alami dan sirkulasi udara yang baik sepanjang hari. -
Akses dan Area Terbuka
Desain renovasi juga memperhatikan area akses masuk dan ruang terbuka di sekitarnya agar memudahkan jamaah dan menjaga sirkulasi massa saat waktu sholat.
-
Informasi Tambahan
Dalam proses perancangannya, tim Exacon mengedepankan prinsip fungsionalitas, pencahayaan alami, dan sirkulasi udara yang optimal. Desain arsitekturnya menampilkan bentuk bangunan yang modern dan representatif, mencerminkan identitas kelembagaan sekaligus efisien dari sisi struktural dan biaya pembangunan.
Konsep desain arsitektur dan struktur bangunan industri adalah konsep desain bangunan gudang / warehouse / pabrik dengan mengutamakan keamanan struktural dan arsitektur yang memadai untuk terciptanya energi alami yang berkecukupan dan efisiensi biaya pembangunan tanpa mengurangi kestabilan dan kekokohan struktural.
Konsep desain arsitektur dan struktur bangunan industri seperti ini sudah banyak diterapkan di daerah-daerah dengan kawasan industri Jakarta Selatan, Jakarta Utara, Jakarta Timur, Jakarta Barat, Cikarang, Bekasi, Depok, Tangerang, Karawang dan sekitarnya.
Jasa Desain Arsitektur dan Struktur Bangunan Industri Pabrik Gudang dan Warehouse EXACON Design and Constructions
EXACON merupakan penyedia Jasa Desain Arsitektur dan Struktur Bangunan Industrial dengan mengedepankan tingkat keamanan struktural yang baik, di desain oleh tenaga ahli struktur dan arsitektur berpengalaman dalam mendesain dan menganalisa bangunan industrial, gudang, warehouse dan pabrik.
EXACON merupakan Penyedia Jasa Desain Arsitektur, Struktur dan Kontraktor Bangunan Industri Gudang Pabrik yang mengutamakan ketepatan desain baik arsitektur maupun struktur, agar terciptanya atau tercapainya ekspektasi dan keinginan dari pelanggan. Selain industrial building atau bangunan industri, EXACON mampu bergerak untuk segmen bangunan gedung seperti rumah 2 lantai tinggal, kost-kostan, villa, ruko, rukan, hotel, resort dan apartemen yang kami buat dengan tenaga ahli yang kompetitif dan lulusan arsitek dan sipil dari institusi pendidikan ternama di Bandung dan JABODETABEK.
Exacon Multi Rekayasa
Bangun rumah 2 lantai minimalis impian anda sekarang juga hanya di EXACON. Kami menyediakan proyek desain arsitektur rumah 2 lantai minimalis atau konsep desain rumah 2 lantai minimalis. Tidak hanya Konsep Minimalis. ada beberapa konsep lain diantaranya Konsep Minimalis Modern, Konsep Minimalis Tropis. Konsep Klasik. Konsep Mediterania dan lainnya.
Anda dapat menghubungi kami untuk layanan jasa desain arsitektur rumah 2 lantai minimalis atau layanan lainnya seperti layanan jasa desain arsitektur. Jasa desain interior, jasa kontraktor bangunan, jasa renovasi bangunan, jasa studi kelayakan dan jasa desain landscape. Masuk ke halaman kontak atau menghubungi nomor 081237717715 atau via Whatsapp di nomor 081237717715. Ikuti kami di media sosial: Facebook, Twitter dan Instagram.
Lihat portofolio proyek kami lainnya: Portofolio proyek jasa desain arsitektur. Jasa desain interior, jasa kontraktor bangunan, jasa renovasi bangunan, jasa studi kelayakan dan jasa desain landscape EXACON – Design and Constructions.

